Casa indipendente in vendita

Giarre, Via Palermo - Macchia
€ 80.000
4 locali 4 locali
129 Mq 129 Mq
1 bagno 1 bagno

Casa indipendente in vendita

Giarre, Via Palermo - Macchia

Descrizione annuncio

Zona: Macchia via Palermo a circa 50 m dalla chiesa Del Calvario, la parte semi centrale della frazione, distante 800m dalla piazza principale San Vito e le attività come mini market, parrucchiere, tabacchi, bar e macellerie.

Il contesto: Composto principalmente da case indipendenti, piccoli palazzetti familiari econdomini di costruzione anii 60 e 70.

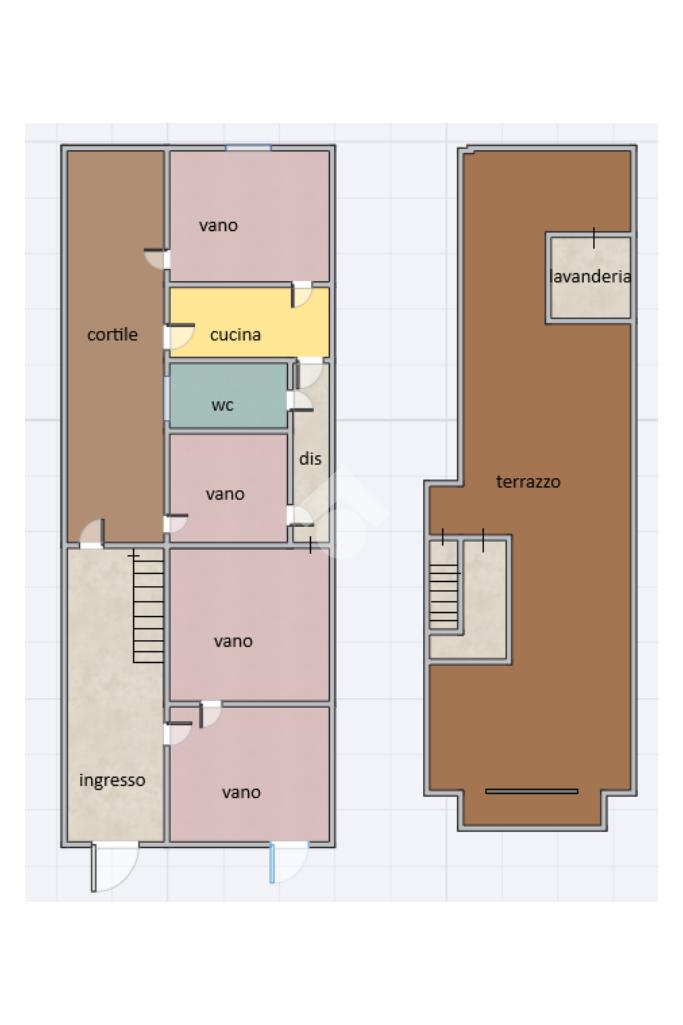
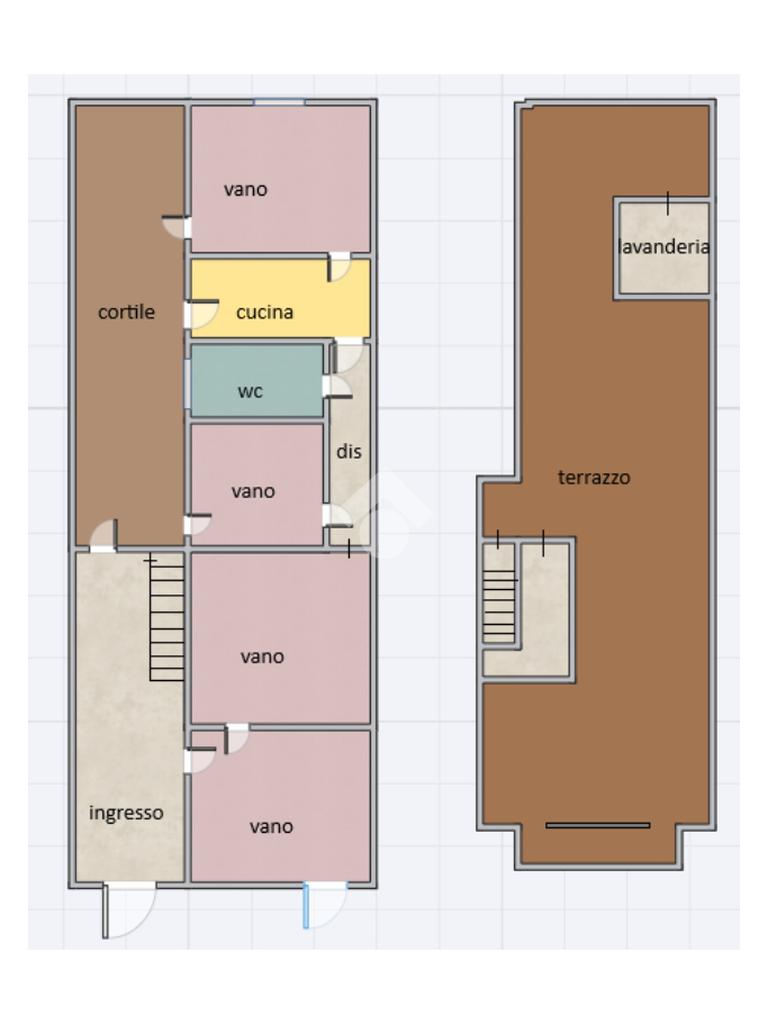
L'immobile: Costruzione completata nel 1964, disposta su un unico livello piano terra,con terrazzo sovrastante e cortile interno. Distribuita come segue: due ingressi dalla via Palermo, uno sul primo ambiente e l'altro ingresso ampio anche per motocicli e scala di accesso al terrazzo sovrastante. Il vano soggiorno con l'accesso dalla strada, il corridoio che disimpegna tutti gli ambienti: tre camere da letto, cucina e bagno. Il terrazzo sovrastante copre tutti gli ambienti e misura 118 mq, con piccolo ambiente lavanderia. Le condizioni sono buone, gli impianti sono stati rivisti nel tempo, la pavimentazione è in ceramica. Da rifare la copertura del terrazzo.

Vuoi ricevere maggiori informazioni e fissare un appuntamento?
Chiara o Sonia sono a tua completa disposizione!

Mostra tutto

Nelle vicinanze

Trasporto pubblico Trasporto pubblico
Trasporto pubblico
2,0 Km
Villa di Giarre
Villa di Giarre
2,9 Km
Scuole Scuole
1° Istituto Comprensivo - Giarre
1,8 Km
Istituto alberghiero "Giovanni Falcone"
2,9 Km
IPSIA "Majorana Sabin"
3,0 Km
Farmacia Farmacia
Farmacia
820 m
Farmacia Daidone
1,4 Km
Ospedali Ospedali
Presidio Ospedaliero San Giovanni Di Dio e Sant'Isidoro
1,2 Km
Supermercati Supermercati
Supermercati
1,8 Km
Eurospin
1,9 Km
Cityper
2,5 Km
Lidl
3,0 Km
Negozi Negozi
Negozi
1,9 Km
Tabacchi
2,6 Km
Bar Bar
Bar Etna
1,7 Km
Bar
2,1 Km
Pub Bonadies
2,4 Km
Ristoranti Ristoranti
Ristorante Pizzeria Antiche Botti
1,4 Km
Il Giardino d'Inverno
2,2 Km
Pizzeria Quattro Quarti
2,9 Km
Mostra tutto

Caratteristiche

Rif.:
61167696
Piano:
1 di 1 (Piano terra)
Camere da letto:
3
Arredamento:
Assente
Condizionamento:
Autonomo
Ascensore:
No
Mostra tutto
Prezzo Prezzo
€ 80.000
Rata mutuo Rata mutuo
€ 371 / mese
Spese annue Spese annue
€ 0
Proponi il tuo prezzoProponi il tuo prezzo

Classe Energetica

G
G
G
G
G
G
G
G
G
EP globale non rinnovabile:
165.00 kW h/m² anno
EP globale rinnovabile:
165.00 kW h/m² anno
EP invernale del fabbricato:
EP estiva del fabbricato:
Anno di costruzione:
1964
Riscaldamento:
Autonomo
Tipo impianto:
Ad aria
Tipo alimentazione:
Altro

Ti interessa visionare l'immobile?

Fissa un appuntamento  Fissa un appuntamento

Richiedi informazioni

Clicca su Leggi per aprire l'informativa
* Questi campi sono obbligatori

Calcola il tuo mutuo

Semplice e senza impegno
Anticipo

( % )
Mutuo

( % )

pochi semplici passi

inserisci i tuoi dati
Questionario completato
Grazie per aver richiesto un appuntamento senza impegno con un nostro Consulente del Credito e Assicurativo.

Hai inserito correttamente tutti i dati necessari e a breve riceverai una e-mail con un link da convalidare per inviare i tuoi dati.
Affiliato
Immobiliare Giarre Centro D.I.
Via Callipoli, 156 95014 Giarre (CT)

Il nostro staff


  • Gianfranco Barbagallo
    Affiliato

  • Sonia Pia Bonanno
    Coordinatrice

  • Chiara Teresa Buscema
    Coordinatrice

  • Maria Arsalane
    Collaboratrice

  • Alberto Sciuto
    Collaboratore
Via Callipoli, 156 95014 Giarre (CT)
Zona: Giarre - Riposto - Mascali
Mostra su mappa
Orari: Lun - Ven 09.00 - 13.00 / 15.30 - 20.00 Sabato 09.00- 13.00 Domenica chiuso
Affiliato
Immobiliare Giarre Centro D.I.
Via Callipoli, 156 95014 Giarre (CT)

2026 Tecnocasa Franchising S.p.A. - P. IVA 08365160152 - Via Monte Bianco 60/A 20089 Rozzano (MI). Ogni agenzia ha un proprio titolare ed è autonoma. Privacy policy | Policy utilizzo | Cookie policy